Подберем проект и рассчитаем стоимость строительства дома под ключ на вашем участке с гарантией возведения теплого контура за 3 - 5 месяцев без долгостроя
☑ Газобетон, кирпич, монолитный железобетон
☑ Типовые и индивидуальные проекты
☑ Честные цены без скрытых платежей
☑ Собственный технадзор
☑ Типовые и индивидуальные проекты
☑ Честные цены без скрытых платежей
☑ Собственный технадзор
ИЩИТЕ НАДЕЖНОГО ПОДРЯДЧИКА ДЛЯ СТРОИТЕЛЬСТВА ДОМА?
ИЩИТЕ НАДЕЖНОГО ПОДРЯДЧИКА
ДЛЯ СТРОИТЕЛЬСТВА ДОМА?
ДЛЯ СТРОИТЕЛЬСТВА ДОМА?
Готовые проекты домов для стройки
Проект ГБ-150
Простота и практичность, компактность, выверенные конструктивный и экономический расчеты - вот главные преимущества этого проекта. Идеальное сочетание цены и качества.
Общая площадь дома – 153 м²
Общая площадь дома – 153 м²
Проект ГБ-180
Комфортный, максимально функциональный, с надежными конструктивными решениями и лаконичными фасадами, простой в строительстве и обслуживании дом. Дом спроектирован так, что поместиться даже самом небольшом участке.
Общая площадь дома – 180 м²
Общая площадь дома – 180 м²
Проект ГБ-172
Отличный выбор для тех, кто ценит практичность во всем. Четкие формы фасадов, вертикальные линии оконных переплетов перекликаются с разделением внутренних, детально продуманных, помещений.
Общая площадь дома – 172 м²
Общая площадь дома – 172 м²
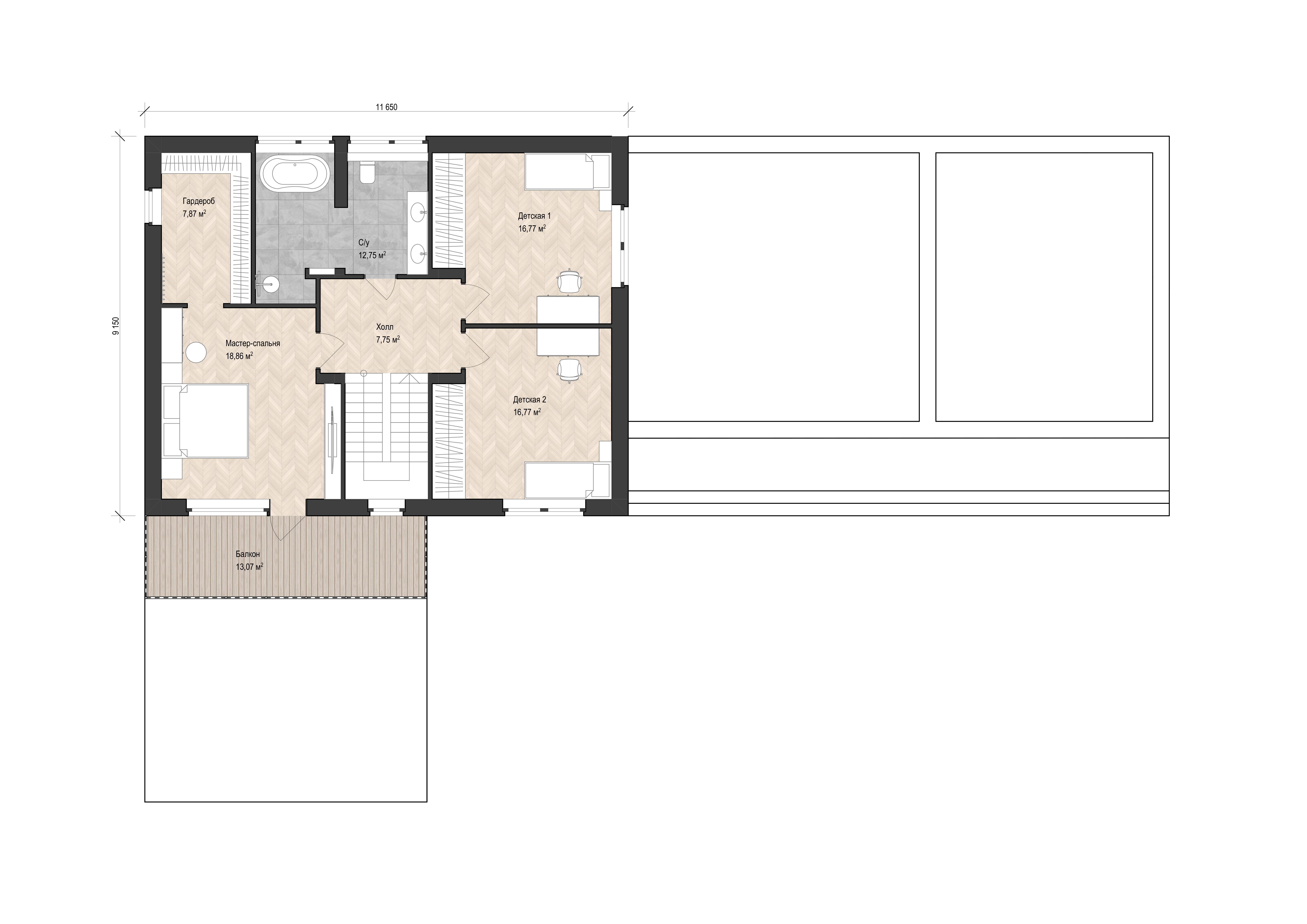
Проект ГБ-217
Двухэтажный дом выполнен в стиле минимализм. В нем есть: кухня-гостинная, уютный камин, четыре спальни, просторная терраса и балкон под навесом, гараж на две машины. Фасад отделан декоративной штукатуркой и кирпичом.
Общая площадь дома – 217 м²
Общая площадь дома – 217 м²
О нас
МОНОЛИТ-ХАУС
120 лет
150+
Средний срок службы дома
Довольных клиентов
С 2007 года мы строим загородные дома в Санкт-Петербурге и Ленинградской области из камня и монолита. Мы продаем спокойствие и гарантированный результат для тех, кто ценит свое время.
Берем на себя весь цикл работ «под ключ»: от проектирования до разводки инженерии и чистовой отделки.
Берем на себя весь цикл работ «под ключ»: от проектирования до разводки инженерии и чистовой отделки.
Построенные дома
Лисий Нос
Грузино
Золотые пески
Рощино Парк
Сергиево
Осинка
Готовый пакет проектной документации — за наш счет!
При подписании договора на строительство дома, любой из типовых проектов Вам в подарок! Не упустите шанс сэкономить до 160 000 тысяч рублей. Подробности акции узнайте у менеджера.
Нахимая кнопку "Отправить", я даю своё согласие «Монолит-Хаус» на
обработку моих персональных данных, в соответствии с Федеральным
законом от 27.07.2006 года №152-Ф3 "О персональных данных", на
условиях и для целей, определенных Политикой конфиденциальности
обработку моих персональных данных, в соответствии с Федеральным
законом от 27.07.2006 года №152-Ф3 "О персональных данных", на
условиях и для целей, определенных Политикой конфиденциальности
Ипотека
Компания ООО «МОНОЛИТ-ХАУС» сотрудничает с ведущими банками страны с Дом.РФ Банк, ВТБ, и СберБанк. Мы построим ваш загородный дом в ипотеку с использованием ЭСКРОУ-СЧЕТА.
Счёт эскроу – это специальный счёт заказчика, на котором банк блокирует средства до выполнения обязательств по договору строительного подряда. Заказчик уверен, что его деньги не будут перечислены до окончания строительства, а подрядчик – что получит оплату за выполненные работы
Какие преимущества для заказчика у счёта эскроу:
Счёт эскроу – это специальный счёт заказчика, на котором банк блокирует средства до выполнения обязательств по договору строительного подряда. Заказчик уверен, что его деньги не будут перечислены до окончания строительства, а подрядчик – что получит оплату за выполненные работы
Какие преимущества для заказчика у счёта эскроу:
- За проценты по ипотеке можно получить налоговый вычет.
- Банк проверяет финансовую устойчивость, документы и опыт строительства.
- Если подрядчик не выполнит условия договора, покупателю вернут размещенные на счёте деньги.
Выбор проекта
Определитесь с проектом дома на нашем сайте
Выбор банка
Мы поможем Вам подобрать банк и собрать документы
Документы
Оформляем сделку и начинаем строительство дома
Дом готов
Вы получаете дом
Вашей мечты
Вашей мечты
Создаем проекты, которые вдохновляют
Коммерческий директор
Генеральный директор
Герман Виноградов
Дмитрий Виноградов
Наша команда
Татьяна
Руководитель отдела продаж
Екатерина
Менеджер отдела продаж
Юлия
Менеджер отдела продаж
Михаил
Инженер технического контроля
Андрей
Производитель работ
Валерия
Архитектор-конструктор
Лиана
Архитектор
Никита
Менеджер отдела снабжения
Валерия
Инженер-сметчик
Маргарита
Руководитель отдела маркетинга
Мы возводим загородные дома из монолитного железобетона, кирпича и газобетона.
- Уже выбрали технологию? Отлично. Передавайте нам задачу, и мы реализуем проект с инженерной точностью и без отклонений от сметы.
- Запутались в материалах? Начитались форумов и не можете выбрать между газобетоном и кирпичом? Мы разложим плюсы каждого решения и подберем материал под ваши цели и бюджет.
- Проектируем и строим объекты любого масштаба, от компактных резиденций до родовых усадьб.
Отзывы наших клиентов
Партнеры
Мы полностью комплектуем объект стройматериалами. За счет прямых дилерских контрактов мы поставляем всё необходимое точно в срок и по рыночных ценам. Это исключает простой на площадке и страхует вашу смету от переплат посредникам.
Получите подробную смету, которая не вырастет в процессе стройки
Мы рассчитаем реальную стоимость вашего каменного дома и жестко зафиксируем ее в договоре. Никаких скрытых платежей.
Заказать расчет строительства
Нахимая кнопку "Отправить", я даю своё согласие «Монолит-Хаус» на
обработку моих персональных данных, в соответствии с Федеральным
законом от 27.07.2006 года №152-Ф3 "О персональных данных", на
условиях и для целей, определенных Политикой конфиденциальности
обработку моих персональных данных, в соответствии с Федеральным
законом от 27.07.2006 года №152-Ф3 "О персональных данных", на
условиях и для целей, определенных Политикой конфиденциальности